ℹ️AZ-N8248 – APARTAMENTOS DE OBRA NUEVA EN TORREVIEJA CERCA DE LA PLAYA

  • 365,000€/€
Torrevieja
En venta
ℹ️AZ-N8248 – APARTAMENTOS DE OBRA NUEVA EN TORREVIEJA CERCA DE LA PLAYA
Torrevieja
  • 365,000€/€

Descripción

APARTAMENTOS DE OBRA NUEVA EN TORREVIEJA CERCA DE LA PLAYA

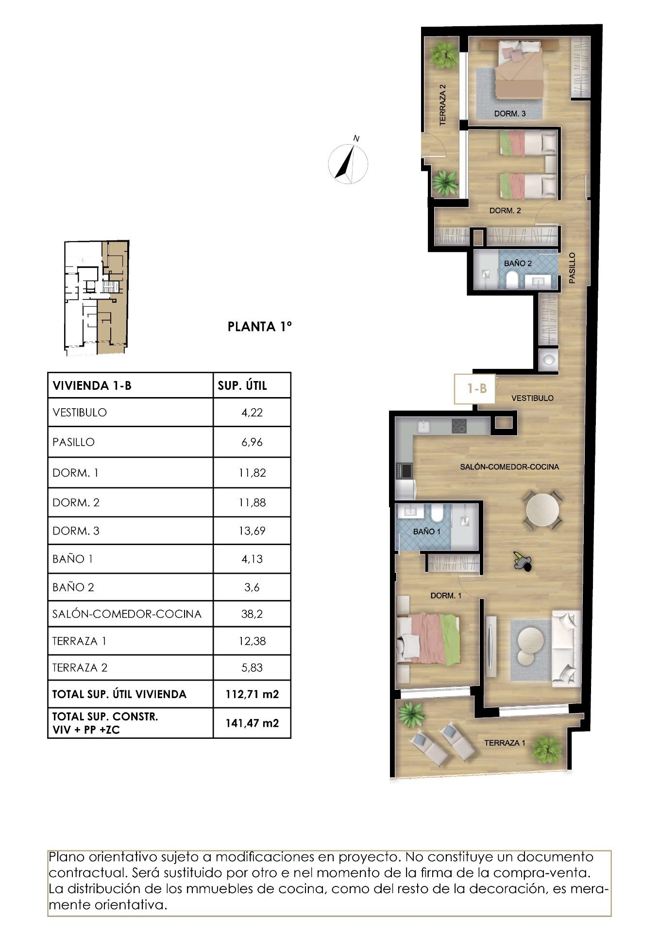
Promoción de obra nueva de 8 apartamentos y áticos de lujo en Torrevieja situados a tan solo 150 metros de la playa.

Las modernas viviendas disponen de 3 dormitorios, 3 baños, cocina americana con el salón, suelos radiantes en los baños, amplias terrazas, armarios y cocina totalmente equipados.
Áticos con solarium privado.
Piscina comunitaria y sauna de acabado, solarium en la azotea con barbacoa.

Una plaza de aparcamiento subterráneo opciones a un costo adicional.

Fecha de finalización a finales de 2025

Torrevieja es una ciudad española en la provincia de Alicante, en la Costa Blanca.

Es conocida por su clima típicamente mediterráneo y su costa. Cuenta con paseos marítimos con complejos turísticos a lo largo de sus playas de arena.

El pequeño Museo del Mar y de la Sal alberga exposiciones sobre la historia pesquera y salinera de la ciudad.

En el interior, el Parque Natural de las Lagunas de La Mata-Torrevieja cuenta con senderos y dos lagunas saladas, una rosa y otra verde.

El aeropuerto de Alicante está a 40 minutos y el de Murcia, a 1 hora.

Referencia: AZ-N8248

Detalles

Actualizado en febrero 1, 2026 a 5:08 pm
  • Precio : 365,000€/€
  • Área terrestre : 141.00 m²
  • Habitaciones: 3
  • Baños: 2
  • Garaje: 0
  • Año Construido : 2024
  • Tipo de propiedad : Apartamento, Obra Nueva
  • Estado de la propiedad : En venta
  • Dirección Centro
  • Localidad Torrevieja
  • Municipio ALICANTE
  • Código Postal 03182
  • Barrio Centro

Clasificación energética

  • Clase energética : B
  • A+
  • A
  • | Clase de energía B
    B
  • C
  • D
  • E
  • F
  • G
  • H

Anuncios Similares

Comparar listados

Comparar
Alessandro
  • Alessandro